The Preston Ridge Plan | 2 Story | 5 Bedrooms | 4 Bathrooms | 2,581 Sq. Ft.
Preston Ridge Front Elevation
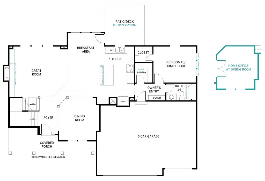
Preston Ridge Main Level
Preston Ridge Upper Level
Preston Ridge Lower Level